0-0-0
1 / Le local du designer.
A partir d’un plan DAO dressé à l’aide du logiciel AutoCad, que vous pouvez découvrir ci-dessous, j’ai entamé une esquisse pour aboutir au résultat final d’un visuel numérique généré par l’IA.
Il s’agit d’un projet d’aménagement d’un bureau pour un designer.
0-0-0

0-0-0
Pour passer à la 3D, j’ai d’abord débuté par une esquisse à la mine graphite. Je me suis fait aider par l’IA pour la représentation extérieure.
0-0-0

0-0-0
Vient ensuite la représentation en couleur (techniques utilisées : l’aquarelle, le crayon de couleur et le stylo bille).
0-0-0

0-0-0
J’ai ainsi pu ensuite générer par l’IA une première représentation numérique avant d’entamer quelques retouches sur Photoshop. Tout comme sur les pièces graphiques, la vue est en grand angle afin de valoriser le projet vis à vis du client, choix que font aussi les promoteurs immobiliers pour valoriser leurs projets d’appartements, par exemple.
0-0-0

0-0-0
Le visuel ci-dessus m’a permis ensuite de générer un résultat par l’IA avant de « fignoler » le rendu final, pour corriger quelques incohérences. A noter que l’effet grand angle a encore été accentué.
A noter aussi que je n’ai pas réussi à faire intégrer la perspective du bureau et des chaises dans le grand angle, ce qui explique la différence avec le visuel précédent. L’IA m’a également ajouté une petite plante à droite des objets design exposés sur le meuble, ce que je n’avais pas demandé. Je me suis résolu, finalement, à la conserver.
0-0-0

0-0-0
Les intentions dans l’organisation spatiale :
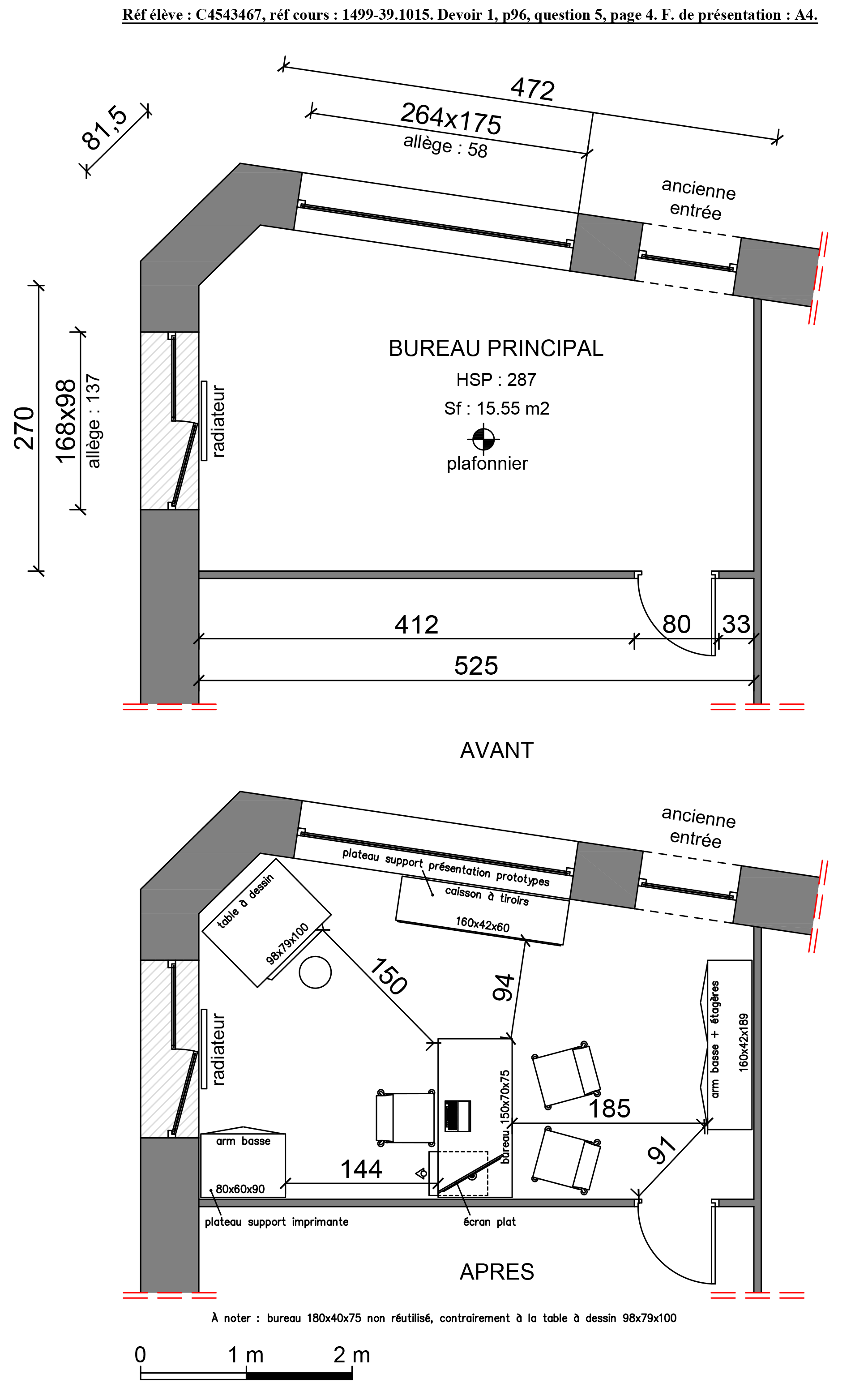
Le bureau est situé, à l’angle de la rue, avec une lumière naturelle important grâce à trois surfaces vitrées dont une est une baie. C’est un atout majeur dans l’aménagement que je propose, tout en veillant à limiter l’éblouissement sur les écrans de travail, qui se trouveront le plus éloignée de l’apport lumineux principal.
Trois espaces : accueil clients et rangement, espace de travail informatique et l’espace de la création et du dessin, à côté duquel le designer peut présenter ses dernières créations.
1 / Le bureau principal est positionné perpendiculairement à la baie vitrée principale afin d’atténuer les reflets sur les écrans et permet l’installation d’un poste informatique à double écran, selon les souhaits du designer. Le deuxième écran plat est orientable de manière à s’adapter par rapport aux reflets des vitres, à la lumière naturelle selon la rotation de l’ensoleillement et l’heure de la journée.
Deux chaises visiteurs sont placées en face du bureau, assurant une relation directe et conviviale lors des rendez-vous clients, sans gêner la circulation. A noter aussi que la circulation tient compte des normes PMR, notamment le respect du diamètre minimum requis de 1 m 50 pour la rotation d’un fauteuil roulant.
L’imprimante est positionnée derrière le poste de travail, sur un meuble bas dédié, facilitant ainsi son accès tout en limitant les déplacements.
2 / Une table à dessin est installée entre deux arrivées lumineuses situées de part et d’autre de celle-ci. En retrait du passage principal, son emplacement permet une utilisation confortable, sans interférer avec les flux liés à l’accueil des visiteurs.
L’espace est pensé comme celui d’un « corner » propice à la créativité et au travail manuel.
3 / Un rangement bas est privilégié le long de la baie vitrée afin de conserver la sensation d’espace, ne pas obstruer la lumière naturelle et de permettre au designer d’exposer ses créations visibles aussi de la rue. Ce rangement bas et celui (avec étagères, placé contre le mur permettent le stockage du matériel, des dossiers et des fournitures tout en restant facilement accessibles (il est indiqué sur le plan mais pas représenté sur mes visuels).
4 / Pas de gros travaux envisagés, d’autant que le local est sain, d’une part, mais aussi, d’autre part, dans le but de respecter le budget restreint du client. L’aménagement repose essentiellement sur le positionnement du mobilier existant ou standard, sans intervention sur la structure du bâti.
5 / L’ancienne identité visuelle était incompatible avec l’activité du designer, notamment la couleur mauve des murs. J’ai donc choisi un environnement mural blanc qui reste la dominante majoritaire, à l’exception d’un mur zébré et coloré, en guise d’accompagnement, afin d’amener un peu de « peps ». Le choix du mobilier, sauf pour la table à dessin et le tabouret haut, se répartit entre couleur sombre et bois blond afin de s’harmoniser avec le parquet.
Sur ces deux liens ci-dessous, voici ce qui représente pour moi le « Graal » dans l’image numérique en architecture et en décoration, à côté desquels j’ai conscience que je reste un « petit joueur ».
Valentin studio à Lyon et Alexis Chenot.
0-0-0
2 / La planche tendance pour un salon de coiffure.

0-0-0
Organisation de l’espace
L’aménagement privilégie des circulations fluides et dégagées, garantissant une lecture claire des volumes sans rupture visuelle. Les espaces s’ouvrent les uns sur les autres pour créer une continuité naturelle entre les zones, tandis que le mobilier, soigneusement positionné, accompagne intuitivement les déplacements. Conçus comme des lieux de vie évolutifs, les espaces sont multifonctionnels et modulables, capables de s’adapter aux différents usages et moments de la journée.
Luminosité
La lumière occupe une place centrale dans le projet, avec une recherche constante d’apport maximal en lumière naturelle. Des voilages légers et des rideaux en textiles naturels filtrent délicatement la lumière tout en préservant l’intimité. L’éclairage artificiel, doux et indirect grâce à des appliques, prolonge cette atmosphère apaisante. Une température de lumière chaude vient renforcer le sentiment de confort et de sérénité.
Palette de couleurs
La palette chromatique, douce et naturelle, a été pensée pour créer une ambiance équilibrée et rassurante.
Le terracotta apporte une touche de chaleur et de caractère, le vert olive instaure un lien subtil avec la nature et favorise l’apaisement, tandis que le beige constitue une base lumineuse et intemporelle, soulignant l’élégance du lieu.
0-0-0

0-0-0
3 / Les principales différences entre architecture intérieure et décoration.
En architecture intérieure, le domaine de compétence se définit dans la transformation de l’espace et de l’intervention sur la modification des volumes par leur redistribution. S’ajoutent les contraintes techniques comme la prise en compte de la lumière naturelle, le choix des matériaux, le respect des normes de sécurité, ce qui nécessite, bien souvent, des travaux importants.
0-0-0

Visuels numériques d’un atrium, travail personnel
0-0-0
En décoration, il est question d’habiller l’espace, d’agir sur l’ambiance générale, pour la (re)valoriser d’une part, et par la prise en compte de l’esthétisme, d’autre part : choix des couleurs, du mobilier, des textiles des luminaires et des objets utilitaires et décoratifs. Cela entraine des travaux moins importants que ceux dans le domaine de l’architecture intérieure.
0-0-0

Visuels numériques d’un appartement, travail personnel
0-0-0
Pour résumer, l’architecture intérieure, c’est le gâteau, et la décoration, la cerise sur le gâteau. Bien entendu, les domaines de compétences en architecture intérieure permettent aussi de maitriser ceux en décoration. Dans la logique des choses, une formation dans la profession d’architecte d’intérieur inclue aussi celle de la décoration.
Concrètement, une intervention en architecture intérieure permet de changer les emplacements des pièces d’une maison ou d’un appartement alors que ce n’est pas le cas dans une intervention décoration.
Pour entrer dans un cas de figure plus précis, dans les prochaines années, la règlementation va devenir plus stricte (et donc onéreuse pour l’ensemble de la population) sur la question de la mise aux normes de l’isolation des maisons et appartements. Une mauvaise isolation (classement énergétique E ou F) ne permettra plus aux propriétaires de louer leurs logements. Pour un immeuble pouvant être isolé sur l’extérieur, cela concernera un architecte. En revanche, pour un immeuble avec une isolation à effecteur à l’intérieur, cela concernera d’abord l’architecte d’intérieur, puis le décorateur.
0-0-0
4 / La notion d’ergonomie appliquée au projet architectural.
Terme apparu au milieu de XIXe siècle, l’ergonomie vient du grec ancien, « érgon » (travail, action, œuvre) et « nómos » (règle, loi, principe), et vise à adapter l’environnement bâti à l’être humain et qui n’est pas destinée seulement aux valides. Pour ce qui s’agit de personnes à mobilité réduite, même s’il est aisé de constater qu’il y a eu beaucoup de progrès sur ces cinquante dernières années, beaucoup reste à accomplir (constat sur ce point par rapport à mes 35 années de vie professionnelle et sur la prise en compte des règles PMR dans le traitement des projets).
Elle se traduit par deschoix dimensionnels, spatiaux, techniquesafin de rendre les espacesadaptés pour tous.
Dans le but faire coïncider la forme, la fonction et l’usage, placer l’utilisateur au cœur du projet, afin d’être agréable à vivre. Elle doit tenir compte de la sécurité et de la facilité d’utilisation. S’ajoutent la prise en compte des dimensions et des mouvements du corps humain, des usages et des pratiques, des capacités physiques et sensorielles, sans oublier le confort physique et psychologique.
Voici des exemples concrets dans le périmètre d’intervention d’un architecte d’intérieur.
Logement :
Dans la cuisine, un plan de travail adapté sur sa hauteur, prise en compte des distances entre évier–plaque–réfrigérateur (triangle d’activité).Les couloirs d’un logement doivent être suffisamment larges pour permettre théoriquement le passage d’une à mobilité réduite (idéalement d’une largeur de 1 m 50, correspondant à l’encombrement du diamètre de rotation d’un fauteuil). Dans la salle de bain, surtout pour les personnes vieillissantes, privilégier une douche dite « à l’italienne » avec barre d’appui et sols antidérapants plutôt qu’une baignoire.
Pour le rangement, les placards doivent être accessibles, ni trop hauts, ni trop profonds, et n’obligeant pas un effort excessif.
0-0-0

Visuel numérique, travail personnel
0-0-0
Etablissements scolaires :
Tables et chaises adaptés, bien entendu, à la taille des élèves. Un éclairage naturel est à privilégier pour le confort visuel et par ce qu’elle est plus rassurante, plus apaisante. Un équipement est à prendre en compte également pour un confort acoustique, et composé de matériaux ininflammables pour éviter de nouveau le drame de l’incendie du bar de Crans-Montana en Suisse, fin 2025, début 2026, provoqué par un élément acoustique inadapté. La circulation doit se matérialiser par des escaliers sécurisés, des rampes adaptées et un repérage clair des espaces.
Hôpitaux et autres établissements de santé :
Dans les chambres, un accès facile au lit, des commandes à portée de main, un éclairage modulable. Dans les couloirs, des dimensions larges adaptés aux brancards et fauteuils roulants et une signalétique apaisante, simple et lisible. Enfin, les postes de travail doivent répondre au confort du personnel dans l’accomplissement de ses tâches.
Bureaux :
Hauteurs des bureaux adaptés pour un confort de travail, des circulations aux dimensions permettant des déplacements fluides, un confort thermique et visuel comme pour les établissements scolaires, et intégration d’espaces de pause. Respect de ratios qui sont environ de 0,08 à 0,12 personne / m².
0-0-0

0-0-0
Autres espaces accueillant du public (gares, centre commerciaux, etc…) :
Repères visuels clairs, sols tactiles, rampes, éclairage étudié et adapté, parcours d’évacuation rationnels, assises adaptées dans les espaces d’attente, comme est conçue la gare de Montpelier-Sud-de-France, par exemple.
Point important :
Le confort thermique, qui va devenir de plus en plus important ces prochaines années et des normes plus exigeantes, avec notamment une des pistes d’isolation envisagée à l’aide un matériau plus onéreux, certes, mais plus efficace que la laine de verre qui ne protège que du froid, la laine de bois, qui protège aussi du chaud.
0-0-0
5 / Analyse symbolique et sensible.
Contexte
Un client est directeur d’une école de danse et souhaite réaménager le hall d’accueil de son école.
Identité, image, clientèle
L’espace à réaménager est très grand car l’établissement est implanté dans un ancien garage pour automobiles. Le hall d’accueil est un espace qui sert à l’information sur les différents cours proposés et leurs plannings (danse classique, danse moderne, jazz, hip-hop, danse africaine, zumba, pour enfants et adultes), grâce à la présence d’une hôtesse d’accueil. Il servira aussi d’espace de rencontre avec le public lors de démonstrations ou portes ouvertes, il pourra accueillir des buffets et des petites expositions.
Il servira de plus d’espace de détente pour les élèves, avec l’installation d’une machine à café et de canapés.
Les notions à rechercher
Tout ce qui peut se rapporter à ce projet par ce que la démarche se situe au début d’un travail d’analyses symbolique et sensible.
La prise en compte de la symbolique du lieu est possible mais ne doit pas constituer l’élément principal de votre recherche.
Dans un premier temps, une liste des notions et adjectifs qui vont servir de base au choix de vos concepts. Vous appuyez vos recherches sur l’étude de l’énoncé ci-dessus.
Dans un second temps, un choix parmi les notions évoquées et deux ou trois associations de notions, qui illustreront chacune un concept.
Pièce fournies :
- Une liste conséquente de notions variées et explorant une grande diversité de pistes. Vingt notions à fournir au minimum.
- La sélection de deux ou trois concepts associant des notions choisies dans la première liste.
0-0-0
Je commence donc par dresser la liste des notions en me positionnant à la place de celui qui vient de l’extérieur, pour ensuite aller à l’intérieur.
1 / Autour de l’espace :
Acoustique, amplitude, la barre (danse classique), chaine hi-fi, chronomètre, circulation, console de son, éclairage, enceintes, lecteur audio, matière, miroir, musique, parquet, piano, projecteur, résonnance, respiration, texture, scène, transparence, volume.
Autour de l’identité du lieu :
Contemporanéité, créativité, culture, diversité, émancipation, expression corporelle, inclusivité, mixité, modernité, styles pluriels, scène, tradition, vitalité.
Autour de cet établissement recevant du public :
Accessibilité, accueil, chaleur humaine, convivialité, cocon, échange, empathie, ouverture, partage, rencontre, sécurité.
Autour de la discipline de la danse proprement dite :
Corps, dynamique, élan, évacuation, énergie, expression, fluidité, improvisation, mouvement, rythme, souplesse.
2 / Association de notions et de concepts :
2-1 / Le hall est déjà la scène :
Association des notions de mouvement, expression corporelle, scène, rencontre, énergie.
La symbolique réside sur le constat que le hall n’est pas qu’un simple espace d’attente mais aussi une « antichambre » et extension de la scène, de manière à ce que la danse soit déjà perceptible (présence d’écrans de grandes dimensions, par exemple). Il permet, d’une certaine façon, une introduction avant une chorégraphie et de vivre un « after » après avoir assisté à celle-ci. Ainsi, les corps, les gestes, les démonstrations et la présence du public contribuent à apporter une atmosphère vivante et expressive.
2-2 / Le hall, un espace fluide et accueillant :
Association des notions de fluidité, circulation, ouverture, lisibilité, respiration, lumière.
Il est conçu comme un espace qui guide naturellement, et de manière à pouvoir se repérer facilement. La fluidité incarne non seulement le mouvement dansé, mais aussi le confort d’un lieu accueillant et apaisant. Pourquoi-pas un mini bar qui servirait ce qu’on appelle de la petite restauration (à condition que la qualité de la nourriture soit à la hauteur du lieu où elle est servie).
2-3 / La diversité dans le et en mouvement :
Association des notions de mixité, diversité, rythme, culture, partage, vitalité et action.
Le résultat souhaité cherche à mettre en valeur la richesse des styles dans la danse et des publics qu’ils pourraient intéresser. Le but est de faire de ce hall, un lieu de mixage culturel, afin d’associer l’énergie collective à la pluralité des pratiques artistiques.
Ci-dessous, la salle de spectacle du Zinga Zanga, située à Béziers, sur les bords du canal du Midi, qui offre une capacité d’accueil allant de 450 places pour les dîners spectacles, jusqu’à 2300 places pour les concerts. Cet établissement se classe juste derrière le Zénith de Montpellier.
On l’écrit Zinga Zanga mais il faut prononcer «Zingo Zango», petit clin d’œil à l’Occitanie et qui évoque le tic-tac du métronome qui guide le rythme ou le bruit de la batterie dans divers orchestres de bal, de concerts de jazz, ou les sons des musiques électroniques.
0-0-0

0-0-0
C’est tout,… pour le moment!!!
Nicolas globe croqueur (et photographe).
0-0-0